Устройство и принцип работы
Котел КВр-2.65 имеет двухблочное горизонтальное строение, состоящее из ручной топки и котельного блока с конвективным газоходом, внутри которого циркулирует нагреваемая жидкость. Два блока котельного агрегата соединены в единую сварную конструкцию, защищенную теплоизоляцией.
Топка ОУР состоит из системы труб, которые охлаждаются водой, что исключает прогорание металлических поверхностей. Между ними расположен уголок, которых помогает воздуху равномерно заполнять всю площадь топки. Воздух в топку подается системой вентиляции, распложенной под решеткой. Таким образом топливо на решетке сжигается в полукипящем слое, который представляет собой промежуточное состояние топлива между неподвижным и кипящим слоем угля. Этот принцип сжигания топлива снижает химический и механический недожег.
Условное обозначение
Водогрейный котел КВр-2.65 на древесных отходах с топкой ОУР, где:
- К – котел;
- В – водогрейный;
- р – ручная топка;
- 2.65 – мощность котла, МВт;
- О – охлаждаемая;
- У – угловая;
- Р – решетка.
Особенности и преимущества
- Незначительные затраты за счет использования отходов древесной промышленности в качестве топлива;
- Экономичность расхода топлива за счет его полноценного сгорания;
- Адаптивная система сжигания топлива;
- Значительное повышение КПД котельного оборудования (от 80% и более);
- Надежность и долгосрочность эксплуатации котла за счет примитивного механизма;
- Нет необходимости в специальной водоподготовке.
Размещение и установка
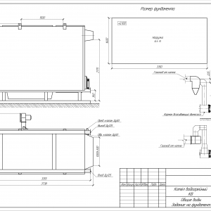
Котел КВр-2.65 на древесных отходах с топкой ОУР поставляется в удобном двублочном исполнении (котел и топка) в полной заводской сборке, и легко стыкуются при монтаже. Устанавливается на предварительно выровненную поверхность без необходимости в строительстве специального фундамента. Крепится к поверхности при помощи анкерных болтов.
Монтаж котельного оборудования производится с соблюдением СНиП 11-35-76 «Котельные установки» и «Правил устройства и безопасной эксплуатации паровых и водогрейных котлов». Установка и пуско-наладочные работы выполняют специалисты, которые имеют разрешение на проведение данных работ.
Эксплуатация и техническое обслуживание
Производить ремонтные работы и техническое обслуживание могут только квалифицированные специалисты, имеющие специальное разрешение. При организации технического обслуживания следует учитывать требования «Правил устройства и безопасной эксплуатации паровых и водогрейных котлов».
Комплектация
Водогрейные котлы КВр-2.65 доставляются в максимально собранном заводском виде и комплектуются всем необходимым для правильной установки прибора: запорной арматурой, контрольно-измерительными приборами и инструкцией по эксплуатации. Поставляется в комплекте с топкой (ОУР).












