Устройство и принцип работы
Котел КВм-{{moshchnost-mvt}} на угле состоит из:
- котла с гладкотрубной системой трубопроводов и теплоизоляционным каркасом, обшитым стальными листами;
- топки ТШПМ с шурующей планкой, на которую ставится котел.
В свою очередь топка ТПШМ состоит из:
- колосниковой решетки, являющейся неподвижной;
- вентилятора, обеспечивающего принудительную циркуляцию;
- бункера;
- шурующей планки, которая движется по колосниковой решетке и подает топливо, ворошит его, разравнивает, а также сбрасывает шлаки.
Именно шурующая планка дает уникальную экономичность данного котла КВм-{{moshchnost-mvt}}, поскольку ею обеспечивается полное сгорание топлива. Она же способствует его автоматической работе и полной безопасности, поскольку если случается форс-мажорная ситуация, то подача воздуха и угля полностью перекрывается.
Кроме того, КПД данного котла повышается от того, что газы, которые образуются при сжигании топлива дважды проходят через конвекторы, расположенные в шахматном порядке, так что тепло от них полностью используются, а затем они выводятся при помощи принудительной тяги, создаваемой дымососом.
Особенность данного устройства состоит в автоматизации его работы. Топливо механически подается в бункер топки, затем открывается его секторный питатель, уголь проходит на решетку припомощи шурующей планки, которая создает условия для его полного и максимально эффективного сгорания. Газы обогревают конвектор с максимальной долей полезного действия, а затем выводятся автоматически, таким же образом удаляются продукты горения.
Условное обозначение
Водогрейный котел КВм-{{moshchnost-mvt}} на угле с ТШПм, где:
- К – котел;
- В – водогрейный;
- м – механическая топка;
- {{moshchnost-mvt}} – мощность котла, МВт;
- Т – топка;
- Ш – шурующая;
- П – планка;
- М – механическая.
Особенности и преимущества
- КПД более 80% обеспечивается за счет большой топливной камеры и системы вентиляции, обеспечивающих полноценное и равномерное сгорание топлива, что помогает рационально использовать и экономить горючее.
- Низкая температура газов сохраняется за счет развитой конвективной поверхности, что увеличивает срок службы оборудования.
- Низкие требования к качеству воды избавляют от необходимости подготавливать воду перед использованием.
- Автоматизация работы котельной за счет механической топки.
- Минимальные монтажные работы позволят сэкономить время и средства при установке котельного оборудования.
Размещение и установка
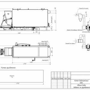
Котел водогрейный КВм-{{moshchnost-mvt}} поставляется в комплекте с механической топкой ТШПМ. В готовом виде конструкция имеет вертикальное строение – топка ТШПМ устанавливается под водогрейный котел КВм, и собирается в общий металлический корпус с теплоизоляцией. Устройство доставляется в максимальной заводской сборке, готовое к монтажу и пуско-наладочным работам. Установка монтируется на подготовленное выравненное основание и надежно фиксируется при помощи анкерных креплений.
Монтаж и пуско-наладочные работы котельного оборудования производятся специалистами с соблюдением СНиП 11-35-76 «Котельные установки» и «Правил устройства и безопасной эксплуатации паровых и водогрейных котлов».
Эксплуатация и техническое обслуживание
После сборки и монтажа котелКВм-{{moshchnost-mvt}} подключается к водопроводной системе и начинает работу. Котел КВм-{{moshchnost-mvt}} работает автономно и не требует вмешательства человека в процессе своей работы. Помимо простоты использования котел КВм-{{moshchnost-mvt}} имеет еще и длительный срок службы с сохранением высокого показателя КПД на протяжении всего срока.
Важно отметить, что производить ремонтные работы и техническое обслуживание могут только квалифицированные специалисты, имеющие специальное разрешение. При организации технического обслуживания следует учитывать требования «Правил устройства и безопасной эксплуатации паровых и водогрейных котлов».
Комплектация
Котел КВм-{{moshchnost-mvt}} поставляется в виде двух блоков (блок котла и блока топки) с щитком управления. Котел укомплектован всем необходимым для правильной установки: клапанами, запорной арматурой и КИП.














