В наличии на складе

Котёл КВм-2,65 на угле с топкой ТШПМ

1 046 000

Доставим в

Основные характеристики
Вид топкиТШПМ
Вид топливаБурый уголь
ТипКВм
Вид топливаКаменный уголь

Водогрейный котел КВм-{{moshchnost-mvt}} на угле с топкой ТШПМ предназначена для выработки тепловой энергии за счет сжигания твердого топлива (каменного или бурого угля). Номинальная температура нагрева жидкости – 115 °С. Рабочее давление – до 0,6 МПа (6,0 кгс/см2). Большое применение котлы КВм на угле получают в системах центрального отопления и горячего водоснабжения. Могут работать в стационарных или модульных котельных (МКУ) с механизированными системами топливоподачи и шлакоудаления.

Характеристики

Цена, руб.
1046000
Вид топки
ТШПМ
Вид топлива
Бурый уголь, Каменный уголь
Тип
КВм

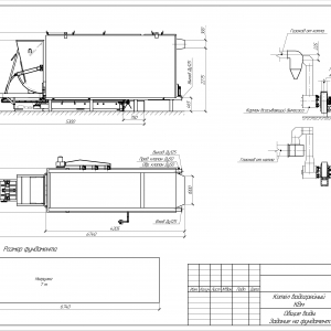
Устройство и принцип работы

Комплект водогрейного котла КВм-{{moshchnost-mvt}} и механической топки ТШПМ собирается в единый корпус по вертикальной схеме – внизу располагается угольная топка, над ней устанавливается блок котла. Корпус изготавливается из металлического жаростойкого листа и обшивается теплоизоляцией.

Сама топка ТШПМ – это жаростойкая камера с чугунным колосниковым полотном и шурующей планкой, которая выполняет несколько функций. Во-первых, она разравнивает куски угля по решетке, подготавливая раскаленный слой под новую порцию топлива. Во-вторых, шурующая планка сбрасывает остатки прогоревшего топлива в зольник.

Условное обозначение

Водогрейный котел КВм-{{moshchnost-mvt}} на угле с ТШПм, где:

  • К – котел;
  • В – водогрейный;
  • м – механическая топка;
  • {{moshchnost-mvt}} – мощность котла, МВт;
  • Т – топка;
  • Ш – шурующая;
  • П – планка;
  • М – механическая.

Особенности и преимущества

  • КПД более 80% обеспечивается за счет большой топливной камеры и системы вентиляции, обеспечивающих полноценное и равномерное сгорание топлива, что помогает рационально использовать и экономить горючее.
  • Низкая температура газов сохраняется за счет развитой конвективной поверхности, что увеличивает срок службы оборудования.
  • Низкие требования к качеству воды избавляют от необходимости подготавливать воду перед использованием.
  • Автоматизация работы котельной за счет механической топки.
  • Минимальные монтажные работы позволят сэкономить время и средства при установке котельного оборудования.

Размещение и установка

Данное устройство максимально готово к монтажу, ставится котел КВм-{{moshchnost-mvt}} на топку, затем подключается запорная арматура, приборы контроля, теплоноситель, а в верхней части присоединяется газоход, к которому подходит дымосос. Воздух подается вентилятором. Котел имеет горизонтальную компоновку и требует установки по уровню.

Эксплуатация и техническое обслуживание

После сборки и монтажа котелКВм-{{moshchnost-mvt}} подключается к водопроводной системе и начинает работу. Котел КВм-{{moshchnost-mvt}} работает автономно и не требует вмешательства человека в процессе своей работы. Помимо простоты использования котел КВм-{{moshchnost-mvt}} имеет еще и длительный срок службы с сохранением высокого показателя КПД на протяжении всего срока.

Важно отметить, что производить ремонтные работы и техническое обслуживание могут только квалифицированные специалисты, имеющие специальное разрешение. При организации технического обслуживания следует учитывать требования «Правил устройства и безопасной эксплуатации паровых и водогрейных котлов».

Комплектация

Котел КВм-{{moshchnost-mvt}} поставляется в виде двух блоков (блок котла и блока топки) с щитком управления. Котел укомплектован всем необходимым для правильной установки: клапанами, запорной арматурой и КИП.

Оглавление
Галерея производства
Бесплатная консультация
по любым вопросам
Или позвоните нам по телефону
8 (3952) 40-71-36
Вы смотрели