Устройство и принцип работы
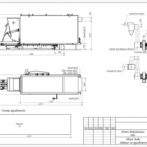
Комплект водогрейного котла КВм-{{moshchnost-mvt}} и механической топки ТШПМ собирается в единый корпус по вертикальной схеме – внизу располагается угольная топка, над ней устанавливается блок котла. Корпус изготавливается из металлического жаростойкого листа и обшивается теплоизоляцией.
Сама топка ТШПМ – это жаростойкая камера с чугунным колосниковым полотном и шурующей планкой, которая выполняет несколько функций. Во-первых, она разравнивает куски угля по решетке, подготавливая раскаленный слой под новую порцию топлива. Во-вторых, шурующая планка сбрасывает остатки прогоревшего топлива в зольник.
Условное обозначение
Водогрейный котел КВм-{{moshchnost-mvt}} на угле с ТШПм, где:
- К – котел;
- В – водогрейный;
- м – механическая топка;
- {{moshchnost-mvt}} – мощность котла, МВт;
- Т – топка;
- Ш – шурующая;
- П – планка;
- М – механическая.
Особенности и преимущества
- КПД более 80% обеспечивается за счет большой топливной камеры и системы вентиляции, обеспечивающих полноценное и равномерное сгорание топлива, что помогает рационально использовать и экономить горючее.
- Низкая температура газов сохраняется за счет развитой конвективной поверхности, что увеличивает срок службы оборудования.
- Низкие требования к качеству воды избавляют от необходимости подготавливать воду перед использованием.
- Автоматизация работы котельной за счет механической топки.
- Минимальные монтажные работы позволят сэкономить время и средства при установке котельного оборудования.
Размещение и установка
Данное устройство максимально готово к монтажу, ставится котел КВм-{{moshchnost-mvt}} на топку, затем подключается запорная арматура, приборы контроля, теплоноситель, а в верхней части присоединяется газоход, к которому подходит дымосос. Воздух подается вентилятором. Котел имеет горизонтальную компоновку и требует установки по уровню.
Эксплуатация и техническое обслуживание
После сборки и монтажа котелКВм-{{moshchnost-mvt}} подключается к водопроводной системе и начинает работу. Котел КВм-{{moshchnost-mvt}} работает автономно и не требует вмешательства человека в процессе своей работы. Помимо простоты использования котел КВм-{{moshchnost-mvt}} имеет еще и длительный срок службы с сохранением высокого показателя КПД на протяжении всего срока.
Важно отметить, что производить ремонтные работы и техническое обслуживание могут только квалифицированные специалисты, имеющие специальное разрешение. При организации технического обслуживания следует учитывать требования «Правил устройства и безопасной эксплуатации паровых и водогрейных котлов».
Комплектация
Котел КВм-{{moshchnost-mvt}} поставляется в виде двух блоков (блок котла и блока топки) с щитком управления. Котел укомплектован всем необходимым для правильной установки: клапанами, запорной арматурой и КИП.














