В наличии на складе

Котёл КВм-2,25 на угле с топкой ТШПМ

990 000

Доставим в

Основные характеристики
Вид топкиТШПМ
Вид топливаБурый уголь
ТипКВм
Вид топливаКаменный уголь

Котел КВм-{{moshchnost-mvt}} на угле с топкой ТШПМ используется для отопления зданий различного назначения и горячего водоснабжения, работает он на твердом топливе. Это механический котел с топкой ТШПМ, чьей особенностью является шурующая планка, он имеет принудительные циркуляцию и тягу, а также механические топливоподачу и золошлакоудаление. Котел очень эффективный, дающий большую теплоотдачу.

Характеристики

Цена, руб.
990000
Вид топки
ТШПМ
Вид топлива
Бурый уголь, Каменный уголь
Тип
КВм

Устройство и принцип работы

Котел КВм-{{moshchnost-mvt}} на угле состоит из:

  • котла с гладкотрубной системой трубопроводов и теплоизоляционным каркасом, обшитым стальными листами;
  • топки ТШПМ с шурующей планкой, на которую ставится котел.

В свою очередь топка ТПШМ состоит из:

  • колосниковой решетки, являющейся неподвижной;
  • вентилятора, обеспечивающего принудительную циркуляцию;
  • бункера;
  • шурующей планки, которая движется по колосниковой решетке и подает топливо, ворошит его, разравнивает, а также сбрасывает шлаки.

Именно шурующая планка дает уникальную экономичность данного котла КВм-{{moshchnost-mvt}}, поскольку ею обеспечивается полное сгорание топлива. Она же способствует его автоматической работе и полной безопасности, поскольку если случается форс-мажорная ситуация, то подача воздуха и угля полностью перекрывается.

Кроме того, КПД данного котла повышается от того, что газы, которые образуются при сжигании топлива дважды проходят через конвекторы, расположенные в шахматном порядке, так что тепло от них полностью используются, а затем они выводятся при помощи принудительной тяги, создаваемой дымососом.

Особенность данного устройства состоит в автоматизации его работы. Топливо механически подается в бункер топки, затем открывается его секторный питатель, уголь проходит на решетку припомощи шурующей планки, которая создает условия для его полного и максимально эффективного сгорания. Газы обогревают конвектор с максимальной долей полезного действия, а затем выводятся автоматически, таким же образом удаляются продукты горения.

Условное обозначение

Водогрейный котел КВм-{{moshchnost-mvt}} на угле с ТШПм, где:

  • К – котел;
  • В – водогрейный;
  • м – механическая топка;
  • {{moshchnost-mvt}} – мощность котла, МВт;
  • Т – топка;
  • Ш – шурующая;
  • П – планка;
  • М – механическая.

Особенности и преимущества

  • КПД более 80% обеспечивается за счет большой топливной камеры и системы вентиляции, обеспечивающих полноценное и равномерное сгорание топлива, что помогает рационально использовать и экономить горючее.
  • Низкая температура газов сохраняется за счет развитой конвективной поверхности, что увеличивает срок службы оборудования.
  • Низкие требования к качеству воды избавляют от необходимости подготавливать воду перед использованием.
  • Автоматизация работы котельной за счет механической топки.
  • Минимальные монтажные работы позволят сэкономить время и средства при установке котельного оборудования.

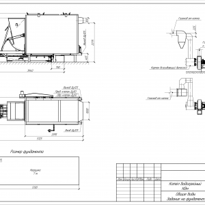
Размещение и установка

Котел водогрейный КВм-{{moshchnost-mvt}} поставляется в комплекте с механической топкой ТШПМ. В готовом виде конструкция имеет вертикальное строение – топка ТШПМ устанавливается под водогрейный котел КВм, и собирается в общий металлический корпус с теплоизоляцией. Устройство доставляется в максимальной заводской сборке, готовое к монтажу и пуско-наладочным работам. Установка монтируется на подготовленное выравненное основание и надежно фиксируется при помощи анкерных креплений.

Монтаж и пуско-наладочные работы котельного оборудования производятся специалистами с соблюдением СНиП 11-35-76 «Котельные установки» и «Правил устройства и безопасной эксплуатации паровых и водогрейных котлов».

Эксплуатация и техническое обслуживание

После сборки и монтажа котелКВм-{{moshchnost-mvt}} подключается к водопроводной системе и начинает работу. Котел КВм-{{moshchnost-mvt}} работает автономно и не требует вмешательства человека в процессе своей работы. Помимо простоты использования котел КВм-{{moshchnost-mvt}} имеет еще и длительный срок службы с сохранением высокого показателя КПД на протяжении всего срока.

Важно отметить, что производить ремонтные работы и техническое обслуживание могут только квалифицированные специалисты, имеющие специальное разрешение. При организации технического обслуживания следует учитывать требования «Правил устройства и безопасной эксплуатации паровых и водогрейных котлов».

Комплектация

Котел КВм-{{moshchnost-mvt}} поставляется в виде двух блоков (блок котла и блока топки) с щитком управления. Котел укомплектован всем необходимым для правильной установки: клапанами, запорной арматурой и КИП.

Оглавление
Галерея производства
Бесплатная консультация
по любым вопросам
Или позвоните нам по телефону
8 (3952) 40-71-36
Вы смотрели