Устройство и принцип работы
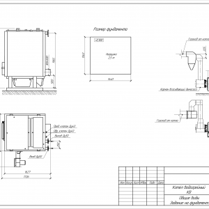
В заводской готовности котел КВм-0.116 представляет собой агрегат вертикальной сборки – топка и блок водогрейного котла. Полумеханическая топка ЗП-РПК оснащена неподвижной решеткой с поворотными колосниками для равномерной подачи твердого топлива. Эффективность этих топок обусловлена способом сжигания топлива – оно сгорает и в слое, и во взвешенном состоянии. Топливо может подаваться как механическим путем, так и при помощи пневматического забрасывателя. В зависимости от схемы котельной, топка РПК может быть изготовлена с передней, задней или средней очисткой шлака.
При помощи топливоподачи куски топлива подаются в бункер забрасывателя, после чего забрасыватель перемещает содержимое на колосниковую решетку. Поворотные колосники равномерно распределяют топлива, которое сжигается порционно. Образовавшиеся зола и шлак остается в бункере отходов горения.
Условное обозначение
Водогрейный котел КВм-0.116 на угле с ЗП-РПК, где:
- К – котел;
- В – водогрейный;
- м – механическая топка;
- 0.116 – мощность котла, МВт;
- З – забрасыватель;
- П – пневмомеханический;
- Р – решетка;
- П – поворотная;
- К – колосниковая.
Особенности и преимущества
- КПД более 80% обеспечивается за счет большой топливной камеры и системы вентиляции, обеспечивающих полноценное и равномерное сгорание топлива, что помогает рационально использовать и экономить горючее.
- Низкая температура газов сохраняется за счет развитой конвективной поверхности, что увеличивает срок службы оборудования.
- Низкие требования к качеству воды избавляют от необходимости подготавливать воду перед использованием.
- Автоматизация работы котельной за счет механической топки.
- Минимальные монтажные работы позволят сэкономить время и средства при установке котельного оборудования.
Размещение и установка
Котел КВм-0.116 должен быть установлен специалистами. Котел имеет значительный вес, поэтому устанавливается только на пол, на специально подготовленную поверхность. Котел КВм-0.116 устанавливается на подготовленный фундамент, к нему монтируется топка. Важно обеспечить доступ кислорода к вентиляционной системе и установить оборудование ровно, используя уровень. Далее собранный котел присоединяется к трубопроводу, устанавливаются запорные устройства, все необходимая арматура и контрольно-измерительные приборы. В конце производится монтаж газовыводящей системы и установка элементов управления.
Эксплуатация и техническое обслуживание
После сборки и монтажа котел подключается к водопроводной системе и начинает работу. Котел КВм-0.116 работает автономно и не требует вмешательства человека в процессе своей работы. Помимо простоты использования котел КВм-0.116 имеет еще и длительный срок службы с сохранением высокого показателя КПД на протяжении всего срока.
Важно отметить, что производить ремонтные работы и техническое обслуживание могут только квалифицированные специалисты, имеющие специальное разрешение. При организации технического обслуживания следует учитывать требования «Правил устройства и безопасной эксплуатации паровых и водогрейных котлов».
Комплектация
Котел КВм-0.116 поставляется в виде двух блоков (блок котла и блока топки) с щитком управления. Котел укомплектован всем необходимым для правильной установки: клапанами, запорной арматурой и КИП.









