Угольный водогрейный котел КВр предназначен для стационарных котельных без систем механической подачи угли и без механического золоотведения. Также котел данного типа может применяться в модульных и транспортабельных котельных. Котел отличается простотой в эксплуатации, безопасен и экономичен в использовании. За счет особенностей конструкции КПД котла превышает 80% и сохраняет этот показатель в течение всего срока службы.
Устройство и принцип работы
Котел КВа-{{moshchnost-mvt}} состоят из топки и самой конвективной камеры. Так как топливо жидкое или газообразное, то в конвективную часть оно подается горелкой, которая смешивает горючее с воздухом и распыляет сформированным факелом. Также горелкой регулируется мощность котла. Отработанные газы выводятся через трубу.
Котел КВа-{{moshchnost-mvt}} защищен от перегревов и оборудован автоматикой безопасности. На задней стенке котла имеется специальный клапан, который срабатывает при скачке давления. Котел оснащен системой регулирования, которая рассчитывает количество подаваемого топлива в зависимости от давления в котле.
Условное обозначение
Котел КВа-{{moshchnost-mvt}}, где:
- К – котел;
- В – водогрейный;
- а – автоматизированная горелка;
- {{moshchnost-mvt}} – теплопроизводительность.
Особенности и преимущества
- Эффективное сжигание топлива;
- Высокий показатель КПД – более 90%;
- Систем поддержания высокого показателя КПД на протяжении всего срока использования;
- Устойчивость к накипи;
- Отсутствие водоподготовки;
- Автоматизация процессов;
- Автоматика безопасности.
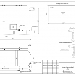
Размещение и установка
Котел КВа-{{moshchnost-mvt}} должен быть установлен специалистами. Котел имеет значительный вес, поэтому устанавливается только на пол, на специально подготовленную поверхность. Для установки котла КВа-{{moshchnost-mvt}} не требуется заливать фундамент: котел ставится на раму и опоры, а опоры крепятся к подготовленной поверхности болтами. На фронтовую стенку котла крепится горелка. Устройство прибора предполагает целый ряд подходящих горелочных устройств разных производителей.
Эксплуатация и техническое обслуживание
Водогрейный котел КВа-{{moshchnost-mvt}} очень прост в эксплуатации. После монтажа котел подключается к водопроводной системе и начинает работу. Котел КВа-{{moshchnost-mvt}} полностью автономен, не требует специальной подготовки воды. Помимо простоты использования котел КВа-{{moshchnost-mvt}} имеет еще и более длительный срок службы, чем, например, простой бойлер.
Важно отметить, что производить ремонтные работы и техническое обслуживание могут только квалифицированные специалисты, имеющие специальное разрешение. При организации технического обслуживания следует учитывать требования «Правил устройства и безопасной эксплуатации паровых и водогрейных котлов».
Комплектация
Котлы КВа-{{moshchnost-mvt}} доставляются в максимально собранном заводском виде и комплектуются всем необходимым для правильной установки прибора: запорной арматурой, контрольно-измерительными приборами и инструкцией по эксплуатации. Горелка в комплект не входит.
















