Устройство и принцип работы
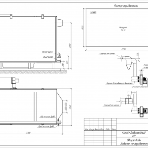
Водогрейный котел КВ-ТС-5.8 состоит из конвективного и топочного блоков котла, которые оснащены опорами, монтированные к нижним коллекторам. Подогреватель воздуха крепится к опорной раме. Несущий каркас у котельного оборудования отсутствует.
Принцип работы котла КВ-ТС-5.8 заключается в слоевом сжигании твердого топлива. Таким образом, горючий материал сжигается локально в определенном слое, а не по всей топке. Водогрейный процесс происходит за счет подачи твердого топлива в топочное устройство котельного оборудования. В результате горения осуществляется генерирование потоков горячего воздуха, которые циркулируют по трубопроводной системе, за счет чего возникает повышение температуры воды в котле.
Условное обозначение
Водогрейный котел КВ-ТС-5.8, где:
- К – котел;
- В – водогрейный;
- Т – твердотопливный;
- С – слоевое сжигание топлива;
- 5.8 — мощность котла, МВт.
Особенности и преимущества
- Высокий процент КПД (более 80%);
- Длительность эксплуатации;
- Возможность автоматизации процессов;
- Эффективный расход топлива за счет слоевого сжигания;
- Нет необходимости в предварительной водоподготовке;
- Вместительность топливной камеры.
Размещение и установка
Особенных требований к установке котла КВ-ТС-5.8 нет, главное обеспечить надежную систему циркуляции воды, чтобы жидкость не перегревалась и не создавала лишнюю нагрузку на емкость с водой, и на весь котел в целом. К обслуживанию котла можно отнести естественно заброску топлива рабочим, а также очистку контейнера от золы и сажи в периодическом режиме (в зависимости от зольности топлива, которое используется в котле).
Эксплуатация и техническое обслуживание
Производить ремонтные работы и техническое обслуживание могут только квалифицированные специалисты, имеющие специальное разрешение. При организации технического обслуживания следует учитывать требования «Правил устройства и безопасной эксплуатации паровых и водогрейных котлов».
Комплектация
Водогрейные котлы КВ-ТС-5.8 доставляются в максимально собранном заводском виде и комплектуются всем необходимым для правильной установки прибора: запорной арматурой, контрольно-измерительными приборами и инструкцией по эксплуатации.













